HUMANE SOCIETY OF FORSYTH COUNTY
Cumming, Georgia
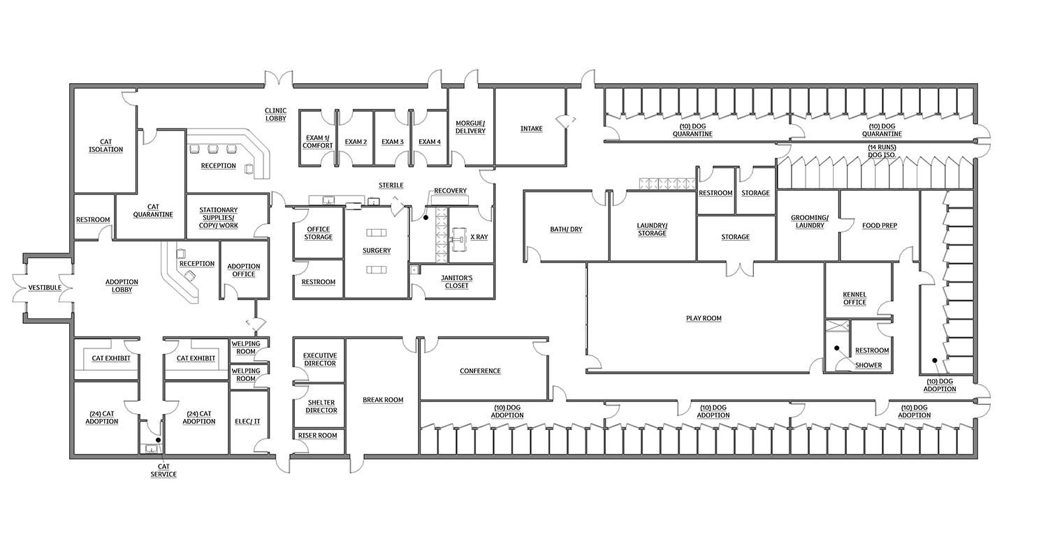
The leadership at the Humane Society of Fosyth County recognized the need for a new facility to accommodate the growing demands for both boarding and adoption services in the community. With this in mind, they initiated plans for the construction of a new free-standing 8,000 square foot Boarding and Adoption Center. This facility will be designed to enhance the Humane Society's ability to provide high-quality care for animals while streamlining the adoption process for prospective pet owners.
HDA Architects was entrusted with delivering comprehensive Architecture & Engineering Services for this project, focusing on a functional and efficient design that met the specific needs of the facility. The new center will include spacious, well-designed areas for boarding, featuring comfortable kennels and play zones. It will also integrate thoughtfully designed adoption areas, where prospective pet owners can meet animals in a calm, welcoming environment.
This project represents a significant step forward for Forsyth Humane Society, ensuring that they can continue to fulfill their mission of providing exceptional care to animals in need and matching them with loving homes.
Project Specs
Size: 8,000 sq ft
Contacts
Debbie Bertsch
Executive Director
770.887.6480
4440 Keith Bridge Road
Cumming, GA 30041

