Kind Animal Center
Spring Hill, Florida
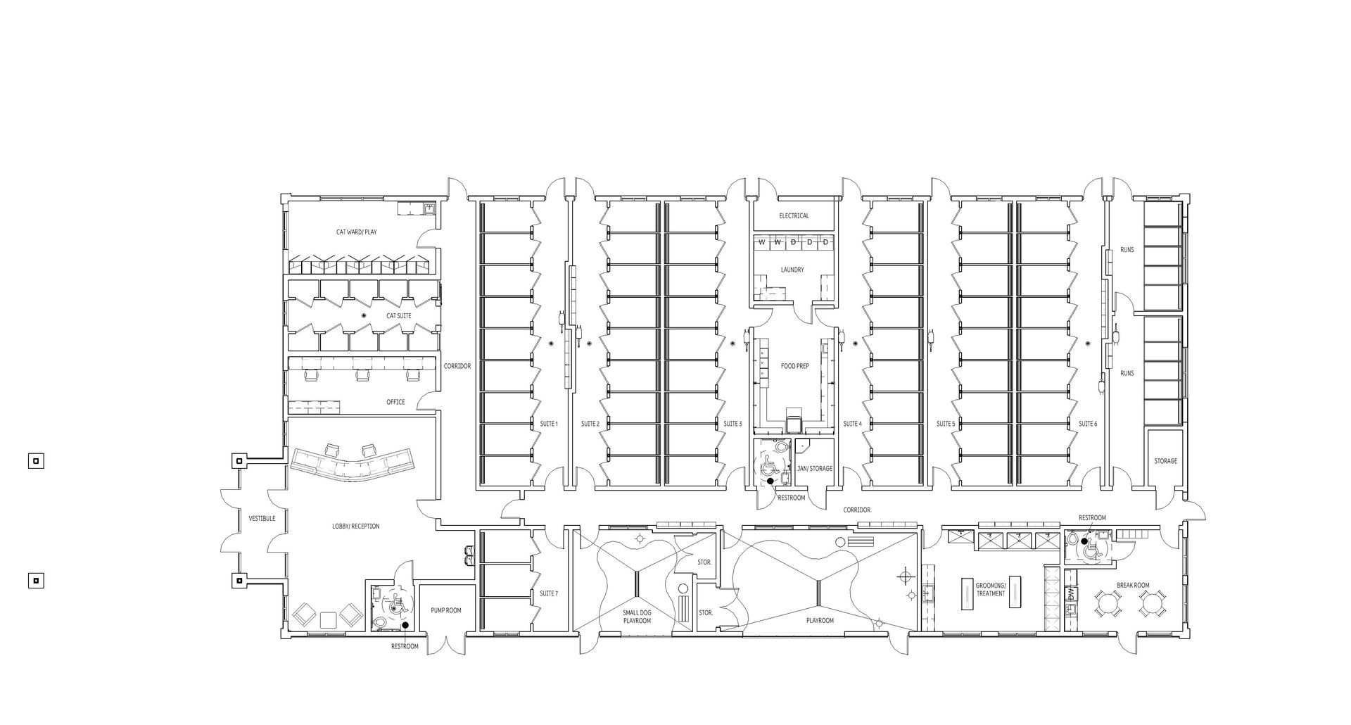
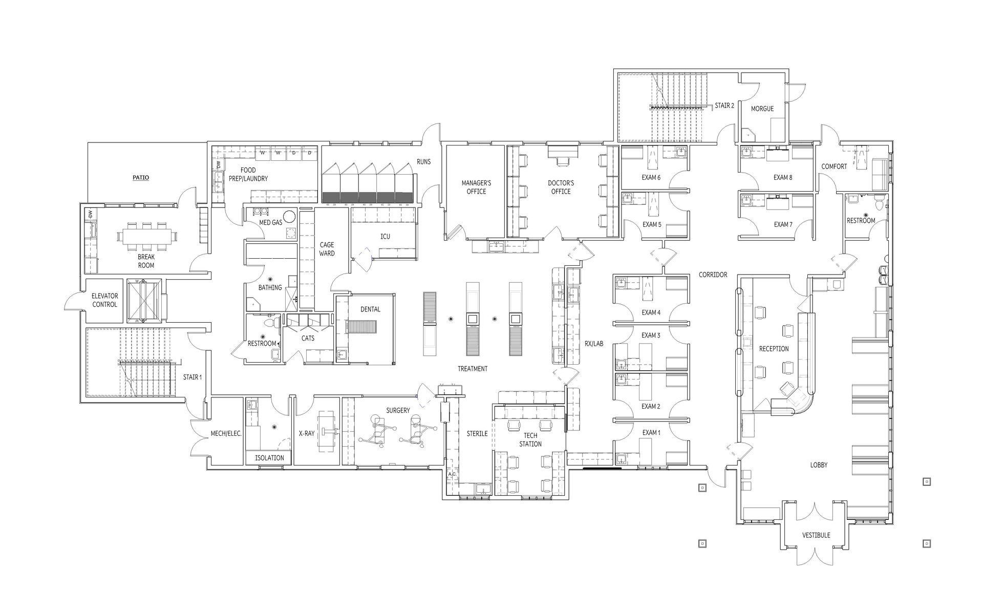
In the late summer 2021, the leadership team at Kind Animal Care identified the pressing need to expand their facilities to better serve their community. The existing structure could no longer accommodate the growing demand for high-quality veterinarian care and boarding services. Recognizing this challenge, they trusted HDA to design a solution that would not only meet their immediate needs but also allow for long-term growth and adaptability. The resulting design features two state-of-the-art buildings: an 11,000 SF, two-story animal hospital and a 10,000 SF single-story boarding facility.
Project Specs
SIZE: 21,000 SQ FT
Contacts
DRS. MIKE & JULIE NOYES
PH: 352.688.9911
2460 ANDERSON SNOW ROAD
SPRING HILL, FL 34609











